About
The Villa
The Lodge
Reservations
Private dining
Celebrations
Weddings
Other celebrations
Retreats
Reviews
Blog
FAQ
Contact
About
The Villa
The Lodge
Reservations
Private dining
Celebrations
Weddings
Other celebrations
Retreats
Reviews
Blog
FAQ
Contact
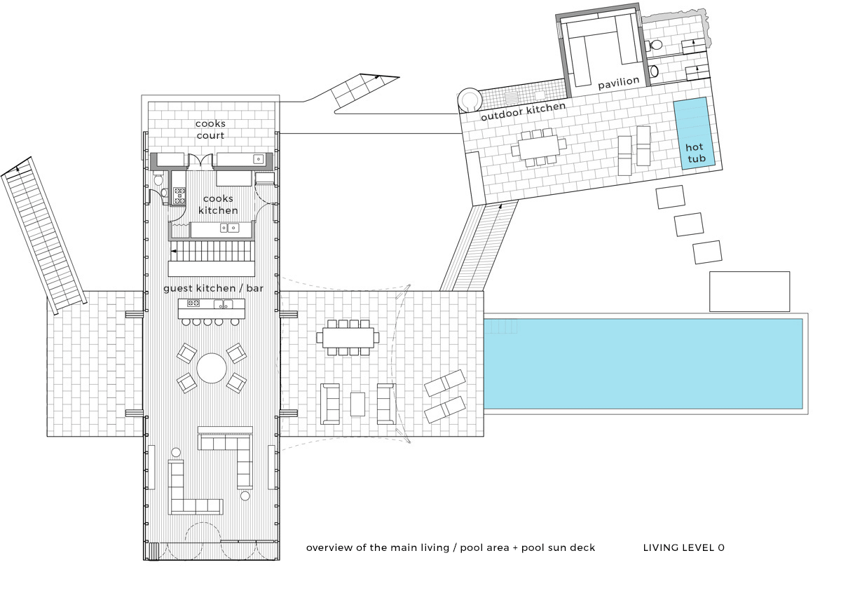
Plans
A selection of site and floor plans of Cosmos Saint Lucia